





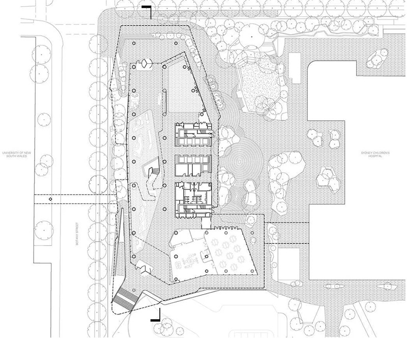
新南威爾士大學健康轉化中心(Health Translation Hub,簡稱 HTH)被構想為創新、協作與社區交流的標志性建筑,其建筑與景觀設計巧妙地連接了新南威爾士大學肯辛頓校區與蘭德威克健康與創新區(Randwick Health and Innovation Precinct,簡稱RHIP)。設計將教育、研究與醫療服務融合在一個互聯的生態系統中,促進了知識交流與健康轉化成果的產出,從而縮短了健康研究與臨床實踐之間的反饋循環。



HTH 戰略性地坐落于 High 街與 Botany 街的交匯處,建筑開放通透的底層平面將公眾流動融入場地,提供了連接周邊交通網絡與校園及健康目的地的重要通道。兩座玻璃人行天橋進一步強化了這種連通性,西側連接華萊士·沃斯大樓(Wallace Wurth Building),東側連接悉尼兒童醫院(Sydney Children's Hospital)與明德魯兒童綜合癌癥中心(Minderoo Children's Comprehensive Cancer Centre),實現了人員、思想與發現的無縫流動。











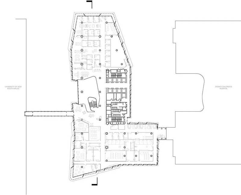
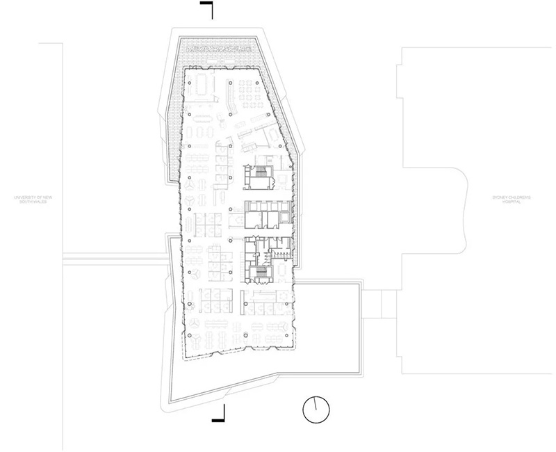
建筑高 14 層,設計以輕盈、通透與動感為特點,獨特的立面靈感源自悉尼東海岸風蝕沙丘的形態,是對地域與場所的當代詮釋。由突出遮陽板、雙層玻璃與保溫板組成的立面系統提供了遮陽功能,同時減輕了建筑的體量感。玻璃增強混凝土(GRC)面板、弧形鋁制遮陽板與高性能玻璃的組合使太陽輻射減少了 60%,同時保持了視覺的通透與開放。這一分層系統創造了深度與質感,全天捕捉光影的變化。底層高度透明的立面增強了通透性與歡迎感,而塔樓“天空之色”的輕盈表現則成為了園區的地標性燈塔。材質選擇汲取了當地景觀的沙色調與質感靈感;淺色磚石、大面積玻璃與混凝土飾面使建筑扎根于場地。





在 HTH 的中心,一個多層次的中庭環繞著建筑的社交與協作核心。這個充滿光線的垂直空間通過層疊的特色樓梯與寬敞的流通區域,在視覺與物理上連接了四個裙樓層面。室內設計借鑒了建筑與景觀設計中提及的海岸地貌,創造了由實體化組件構成的基準面,形成了座椅、桌子、長凳與種植區。








文章轉自:小微設計